PROPERTY DESCRIPTION
BRAD MILOS is proud to present to you 296 Skeet Road Harrisdale.
Contact Brad Milos to achieve a Price Guide.
PREMIERE HOME OPEN – SUN 2pm – 2:30pm
View the 3D Virtual Tour – NOW OPEN 24/7
All offers presented on or before 14th of May 2023 – Unless Sold Prior.
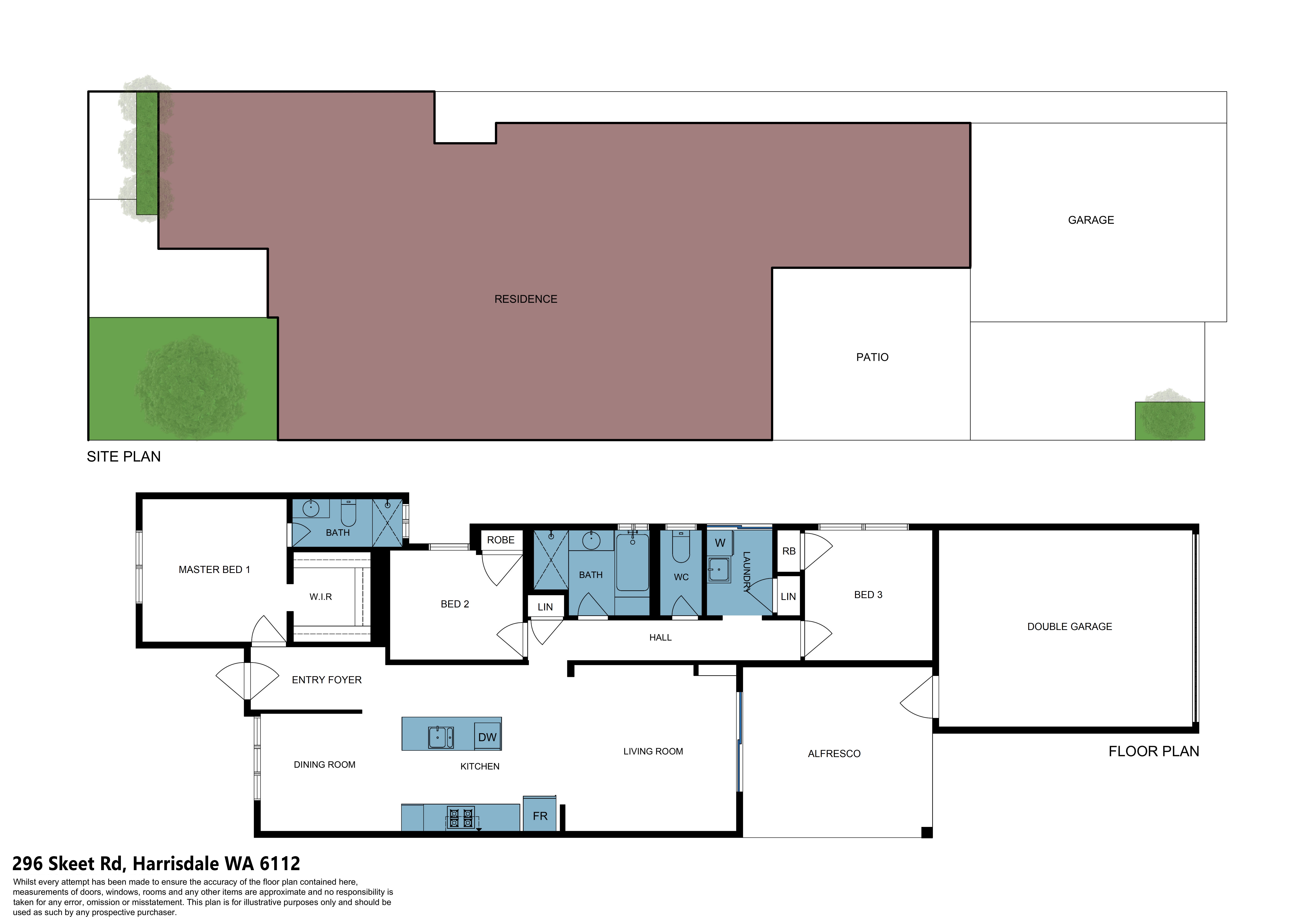
Situated centrally within the suburb this ONE OWNER home has been carefully maintained and looked after since new and is situated directly opposite natural Bushland vista, where you can hear the birds sing. Furthermore its walking distance to several other nearby manicured parks, with Harrisdale Senior High School less than 400 meters away and Harrisdale Primary School and playgrounds – 2 streets away. Stockland Harrisdale Shopping Centre provides further convenience that is less than 1km away with access to a local Medical Centre and a Childcare Centre at the end of the street, so if you are looking for perfect Location and an easy care home, look no further.
INSIDE this 3×2 with 2 car garage you will find a spacious open-plan layout that allows for flexible use of living space with a generous sized central Kitchen and Island breakfast bar, whilst taking in a vista across the road to the natural bushland to one side of the home whilst the other flows onto a private outdoor rear Alfresco area.
The Master suite is situated separately off the entry foyer to the front of the home with further views to the bushland across the road, with a private ensuite toilet and WIR.
The 2 minor bedrooms with inbuilt robes are also generous in size that will accommodate double beds, situated off a separate passage with access to the separate bathroom, 2nd toilet and laundry with Excellent well maintained finishes throughout.
The outdoor alfresco has drop-down external roller blinds for all year-round comfort with direct access to the large double garage with easy ramp access.
ADDITIONAL FEATURES AND BENEFITS
– Built in 2015 – ONE CAREFUL OWNER SINCE NEW
– Alarm security system
– Reverse cycle climate control split units in the Master Suite and Main Living area
– Ceiling fans in the Master Suite and Main Living areas
– Quality stainless steel appliances to the kitchen
– All external doors have security screens and the rear living sliding door has an electric roller shutter
– Gated front and rear yards
– Unobstructed views to natural bushland reserve across the road
– Home is in Excellent condition throughout, Will Not disappoint
– Private green titled lot on 237sqm with NO strata Fees
– Additional street front parking out-front
Perfect for the down-sizer, First Home Owner, savvy Investor or small family this home is presented in Excellent! condition throughout and Will Not disappoint the fussiest of Home Owners.
Contact Brad for a Price Guide
What’s your property worth ?
www.bradmilos.com






















