PROPERTY DESCRIPTION
This gorgeous property has recently been leased by Defence Housing Australia and anyone that deals with them knows that when a lease ends they hand the property back over in immaculate condition. This one is no exception. Repainted, professionally cleaned and ready for new owners to just move in and enjoy, it is surprisingly large with great separation between the living areas and bedrooms.
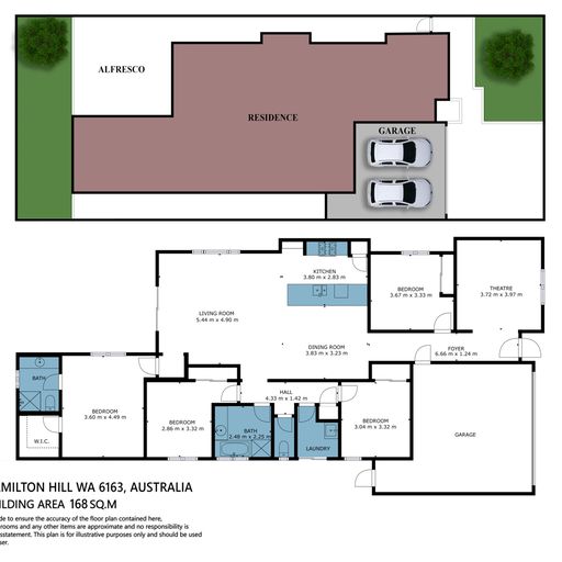
Spacious Master bedroom to the rear of the property offers carpet, walk in robe and Ensuite
Beds 2,3 & 4 are Queen size and are all carpeted and all have built in robes
• Modern kitchen with gas cooktop, stainless steel oven and appliances, overhead cupboards, breakfast bar and large double pantry
Massive open plan family and dining areas, tiled for ease of cleaning and coolness
Separate Home Theatre/Lounge, the perfect second tv room or personal space for the adults
Ducted Air conditioning
Double lock up Garage with automatic roller door
Shoppers entry
Alfresco under the main roof – the perfect spot to entertain
Low maintenance lawns and gardens
Reticulated
Built in 2012
400sqm of land
Approx 173sqm of living
NO STRATA FEES, no shared areas
Private
Located at the end of a cul de sac and with easy access to fabulous Goodchild Park, this is an awesome family style home that would provide a great lifestyle for those that live here. With the beach under 4km away and Fremantle just under 6km (approx. 10 mins by car) you can live the Freo/beach lifestyle without the price tag and if its shops you need to be close to, well there is an IGA just 600m walk away and Phoenix shopping centre is just over 1km away.
Tracy Garbes is happily working with all other agents and invites them for a viewing.

















